
Drenagem da Rua Francisco Manchado
A Prefeitura Municipal de Itagi, faz obra de pavimentação na Rua Francisco Machado.
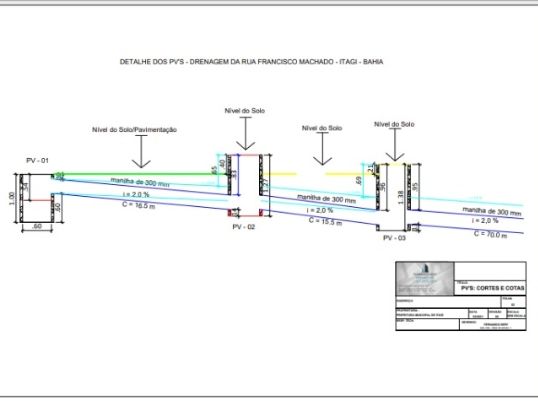
A obra tem projeto de drenagem, como se vê nas fotos abaixo.
Todo projeto realizado junto com a matéria, vem o projeto da drenagem,E pavimentação.
A drenagem tem manilhas de 60, e 30 cm que caem em uma manilha que dá acesso ao outro dreno, esse projeto vai resolver todas as questões de alagamento na baixa dessa rua.
começando com o morador, ele falou da dificuldade que é quando chove. o Senhor Antônio conversou com a nossa equipe e apresentou as dificuldades.
junto com a matéria tem um vídeo aonde você vai ver Os relatos do morador, que fez um batente para conter a água que escorre na rua e fica represada na baixa.
Senhor Antônio vocês sofrem alguma dificuldade Quando chove vem aqui nessa rua.
-aqui na rua quando chove às vezes temos que acordar de madrugada para escoar a água que adentra dentro das casas,
agora com esta pavimentação que o doutor Olival está fazendo com certeza resolverá o nosso problema que já vem há vários anos acontecendo. que Deus ajude o prefeito Dr Olival.
CUIDE-SE E PROTEJA SUA FAMÍLIA
Ouça Nossa Radio












